
某小型综合办公楼装修cad平面图(附效果图)

某小型综合办公楼装修cad平面图(附效果图)

某小型综合办公楼装修cad平面图(附效果图)
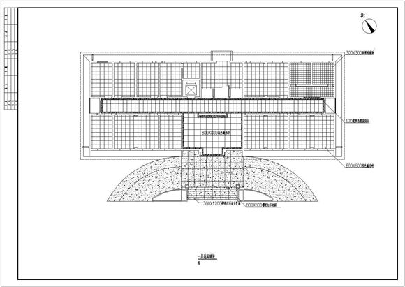
本图纸为:某小型综合办公楼装修cad平面图(附效果图),其中包含平面图等。内容详实,可供参考。

某小型综合办公楼装修cad平面图(附效果图)

某小型综合办公楼装修cad平面图(附效果图)

某小型综合办公楼装修cad平面图(附效果图)
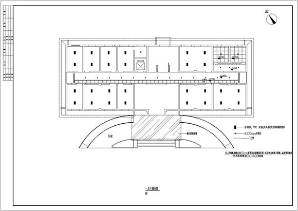
本图纸为:某小型综合办公楼装修cad平面图(附效果图),其中包含平面图等。内容详实,可供参考。
声明:资源收集自网络或用户分享,仅供学习参考,如侵犯您的权益,请联系我们处理。
不能下载?报告错误