规范网
更新
当前位置:
规范网
资料
内容详情
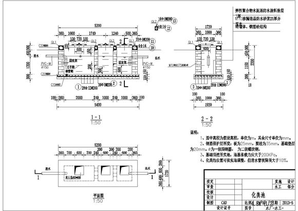
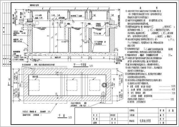
化粪池(10套化粪池图纸)
化粪池(10套化粪池图纸)
化粪池(10套化粪池图纸)
化粪池(10套化粪池图纸)
10套化粪池图纸,包含结构配筋工程量。包括平面、立面、剖面及材料表等。
加入收藏
下载文件
声明:资源收集自网络或用户分享,仅供学习参考,如侵犯您的权益,请联系我们处理。
不能下载?报告错误
下页:
室外砖砌隔油池标准做法图
相关推荐
22TG306图集 装配整体式钢连接混合框架结构节点构造图集
长09J002图集 长沙市民用建筑围护结构节能设计技术规程 框架结构填充PK混凝土小型空心砌块标准图集(二)
川2020J148图集-TJ 四川省钢结构农房标准图集(装配式钢框架结构体系)
钢筋混凝土框架结构设计指导手册田水 2014年
装配整体式混凝土框架结构设计标准 (DB13J/T 8345-2020)
化粪池(10套化粪池图纸)
下载文件
免费下载
标签
有色金属规范
供销合作规范
焊接标准
建筑标准
项目总结
转正申请
市政
山东省标准
文物保护规范
物资管理规范
压力容器标准
测绘规范
学校领导讲话稿
锻件标准
内蒙古自治区标准
出差申请
稀土规范
北京市标准
螺栓标准
人事总结
工业标准
平垫圈标准
水利
银行工作计划
机关单位工作计划
广播电影电视规范
垫片标准
手册