
某地咖啡馆装修设计方案图(共7张)

某地咖啡馆装修设计方案图(共7张)

某地咖啡馆装修设计方案图(共7张)
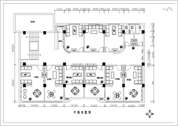
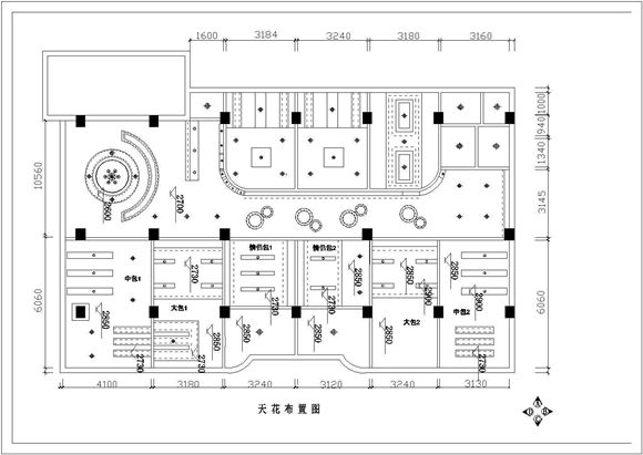
本图为某地咖啡馆装修设计方案图。该图纸共有7张,其中包括平面布置图、天花布置图、大包麻将房隔断图等图。内容详尽,可供参考。

某地咖啡馆装修设计方案图(共7张)

某地咖啡馆装修设计方案图(共7张)

某地咖啡馆装修设计方案图(共7张)
本图为某地咖啡馆装修设计方案图。该图纸共有7张,其中包括平面布置图、天花布置图、大包麻将房隔断图等图。内容详尽,可供参考。
声明:资源收集自网络或用户分享,仅供学习参考,如侵犯您的权益,请联系我们处理。
不能下载?报告错误