
某学校食堂建筑设计方案图(共13张)

某学校食堂建筑设计方案图(共13张)

某学校食堂建筑设计方案图(共13张)
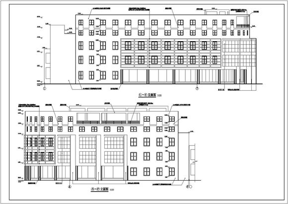
本图为某学校食堂建筑设计方案图。该图纸共有13张,其中包括三层平面图、四层平面图、立面图、建筑设计说明等图。内容详尽,可供参考。

某学校食堂建筑设计方案图(共13张)

某学校食堂建筑设计方案图(共13张)

某学校食堂建筑设计方案图(共13张)
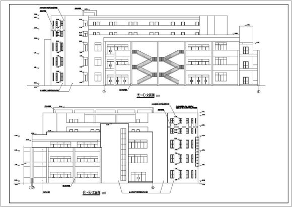
本图为某学校食堂建筑设计方案图。该图纸共有13张,其中包括三层平面图、四层平面图、立面图、建筑设计说明等图。内容详尽,可供参考。
声明:资源收集自网络或用户分享,仅供学习参考,如侵犯您的权益,请联系我们处理。
不能下载?报告错误