
某四层叠拼别墅户型平面图(170、190平方米)

某四层叠拼别墅户型平面图(170、190平方米)

某四层叠拼别墅户型平面图(170、190平方米)
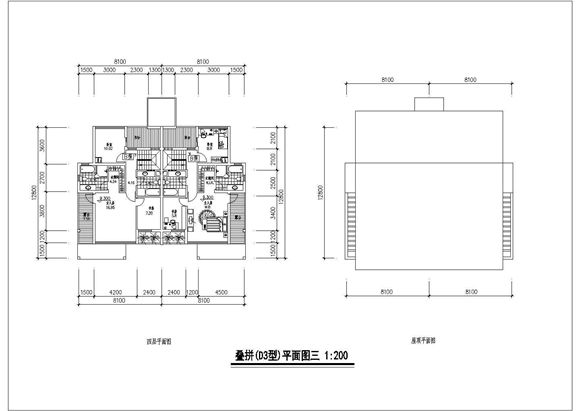
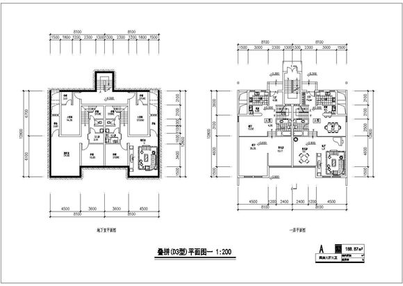
本工程内容简介总开间x进深:16.2x12.8米户型:四房三厅三卫(190平方米)、四房二厅三卫(170平方米)资料包含:户型平面图资料张数:3张CAD

某四层叠拼别墅户型平面图(170、190平方米)

某四层叠拼别墅户型平面图(170、190平方米)

某四层叠拼别墅户型平面图(170、190平方米)
本工程内容简介总开间x进深:16.2x12.8米户型:四房三厅三卫(190平方米)、四房二厅三卫(170平方米)资料包含:户型平面图资料张数:3张CAD
声明:资源收集自网络或用户分享,仅供学习参考,如侵犯您的权益,请联系我们处理。
不能下载?报告错误