
【山东】钢结构舞台结构设计图(共一张图)
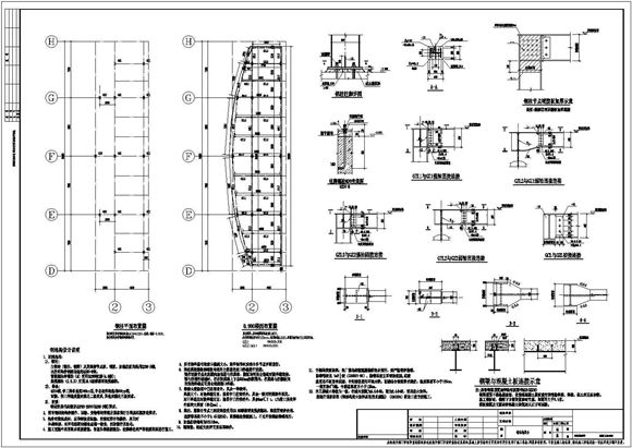
建筑功能:娱乐图纸深度:施工图民用建筑设计使用年限:50年结构形式:钢结构结构安全等级:二级地基基础设计等级:丙级图纸张数:1张设计时间:2014年内容简介本工程为山东某体育场馆的舞

【山东】钢结构舞台结构设计图(共一张图)
建筑功能:娱乐图纸深度:施工图民用建筑设计使用年限:50年结构形式:钢结构结构安全等级:二级地基基础设计等级:丙级图纸张数:1张设计时间:2014年内容简介本工程为山东某体育场馆的舞
声明:资源收集自网络或用户分享,仅供学习参考,如侵犯您的权益,请联系我们处理。
不能下载?报告错误