
某加油站罩棚建筑结构设计图(含大样图,共11张)

某加油站罩棚建筑结构设计图(含大样图,共11张)

某加油站罩棚建筑结构设计图(含大样图,共11张)
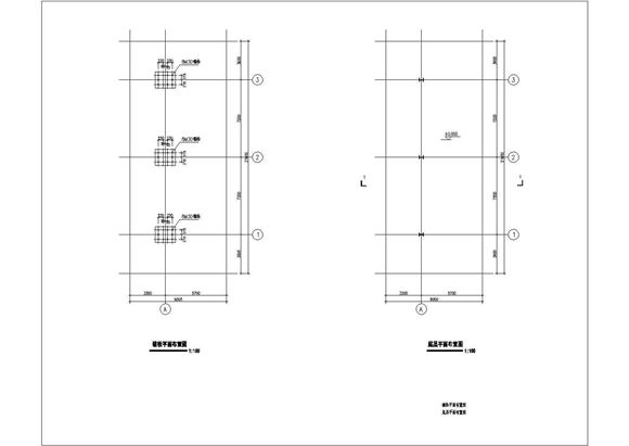
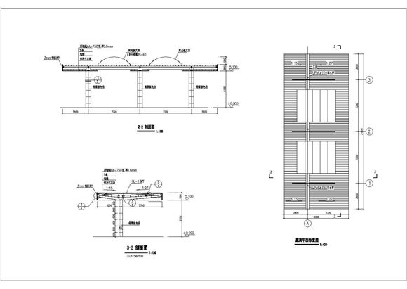
某加油站罩棚建筑结构设计图本次设计为:某加油站罩棚建筑结构设计图图纸包括:罩棚建筑设计、结构设计总说明、锚栓平面布置图、底层平面布置图、屋顶平面布置图、屋面梁布置图、屋面檩条布置图

某加油站罩棚建筑结构设计图(含大样图,共11张)

某加油站罩棚建筑结构设计图(含大样图,共11张)

某加油站罩棚建筑结构设计图(含大样图,共11张)
某加油站罩棚建筑结构设计图本次设计为:某加油站罩棚建筑结构设计图图纸包括:罩棚建筑设计、结构设计总说明、锚栓平面布置图、底层平面布置图、屋顶平面布置图、屋面梁布置图、屋面檩条布置图
声明:资源收集自网络或用户分享,仅供学习参考,如侵犯您的权益,请联系我们处理。
不能下载?报告错误