
某水解酸化池结构图(共4张图)

某水解酸化池结构图(共4张图)

某水解酸化池结构图(共4张图)
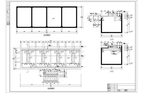
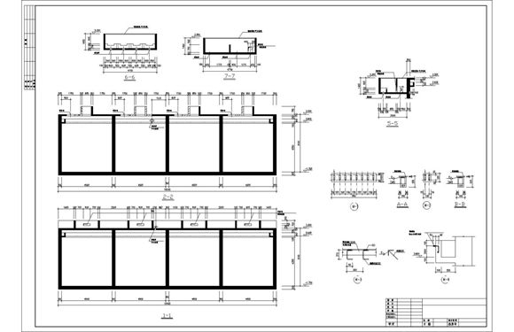
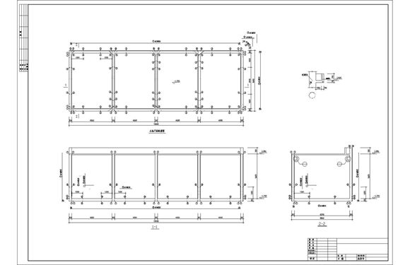
某水解酸化池结构图本次设计为:某水解酸化池结构图图纸包括:水池平面模板图、水池顶板模板图、水池平面配筋图、水池顶板配筋图、池壁圆洞洞口加强筋、池壁矩形洞口加强筋、剖面详图共4张图纸。

某水解酸化池结构图(共4张图)

某水解酸化池结构图(共4张图)

某水解酸化池结构图(共4张图)
某水解酸化池结构图本次设计为:某水解酸化池结构图图纸包括:水池平面模板图、水池顶板模板图、水池平面配筋图、水池顶板配筋图、池壁圆洞洞口加强筋、池壁矩形洞口加强筋、剖面详图共4张图纸。
声明:资源收集自网络或用户分享,仅供学习参考,如侵犯您的权益,请联系我们处理。
不能下载?报告错误