
某三层钢结构厂房设计图(门式钢架结构,共20张)

某三层钢结构厂房设计图(门式钢架结构,共20张)

某三层钢结构厂房设计图(门式钢架结构,共20张)
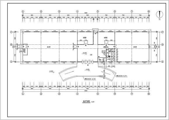
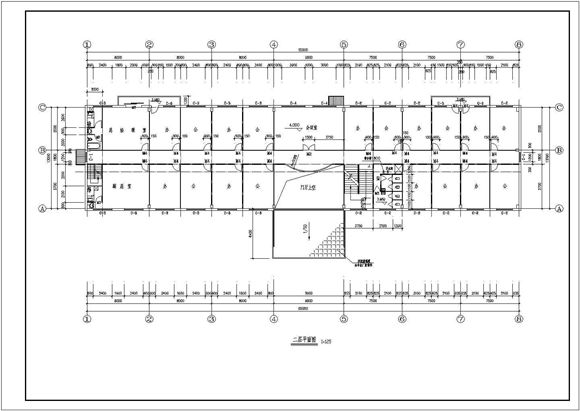
建筑功能:工业建筑厂房高度类别:多层厂房地上层数:3层图纸深度:施工图结构形式:钢结构钢结构:门式刚架结构最大跨度:13m抗震设防烈度:6度抗震风压:0.40kN/㎡图纸张数:20张

某三层钢结构厂房设计图(门式钢架结构,共20张)

某三层钢结构厂房设计图(门式钢架结构,共20张)

某三层钢结构厂房设计图(门式钢架结构,共20张)
建筑功能:工业建筑厂房高度类别:多层厂房地上层数:3层图纸深度:施工图结构形式:钢结构钢结构:门式刚架结构最大跨度:13m抗震设防烈度:6度抗震风压:0.40kN/㎡图纸张数:20张
声明:资源收集自网络或用户分享,仅供学习参考,如侵犯您的权益,请联系我们处理。
不能下载?报告错误