当前位置:首页  资料内容详情

某大门口雨棚结构设计图,共一张图

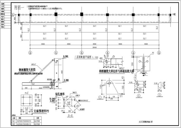
某大门口雨棚结构设计图,共一张图 建筑功能:其他图纸深度:施工图结构形式:钢结构钢结构:门式刚架图纸张数:1张设计时间:2011内容简介梁配筋平面图、钢雨棚梁大样拉杆与两端连接大样共1张图纸。

某大门口雨棚结构设计图,共一张图

声明:本站为网络服务提供者及网络索引服务平台资源索引自网络/用户分享,如有版权问题,请联系站方删除。

不能下载?报告错误