
某办公楼钢框架支撑结构设计图(共23张图)

某办公楼钢框架支撑结构设计图(共23张图)

某办公楼钢框架支撑结构设计图(共23张图)
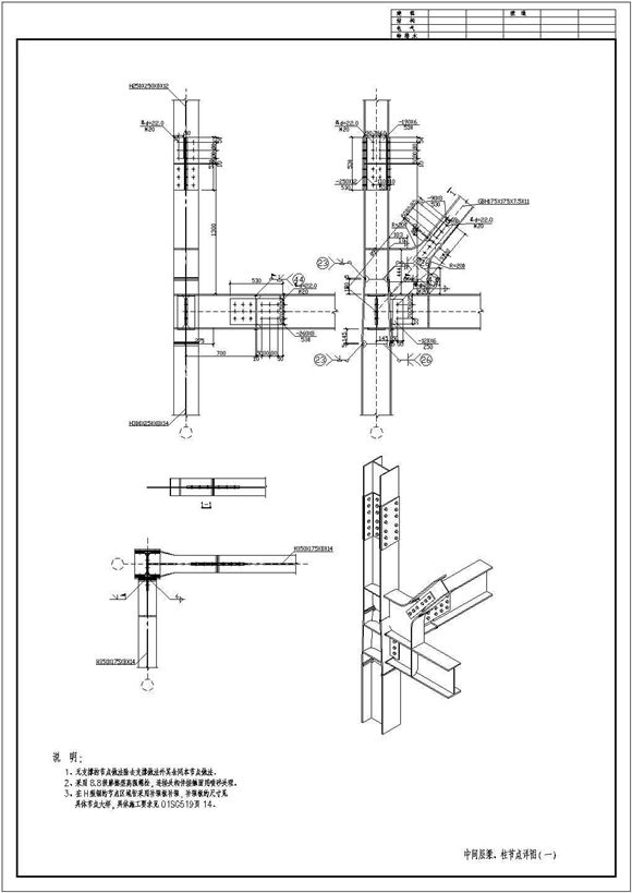
结构设计施工说明、基础平面布置图、基础和柱脚详图、柱脚平面布置图、结构平面布置图、屋面结构平面布置图、楼板配筋平面图、节点构造详图共23张图纸。

某办公楼钢框架支撑结构设计图(共23张图)

某办公楼钢框架支撑结构设计图(共23张图)

某办公楼钢框架支撑结构设计图(共23张图)
结构设计施工说明、基础平面布置图、基础和柱脚详图、柱脚平面布置图、结构平面布置图、屋面结构平面布置图、楼板配筋平面图、节点构造详图共23张图纸。
声明:资源收集自网络或用户分享,仅供学习参考,如侵犯您的权益,请联系我们处理。
不能下载?报告错误