
某钢结构电梯井结构图纸(共3张图)

某钢结构电梯井结构图纸(共3张图)

某钢结构电梯井结构图纸(共3张图)
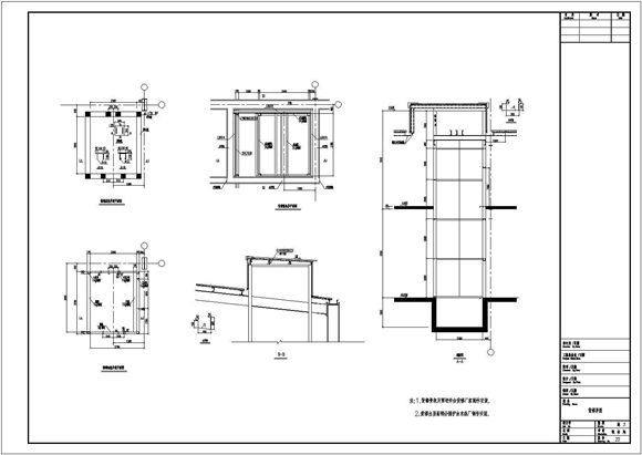
图纸3张,包括:货梯钢架井道平面图、货梯假机房平面图、货梯井道剖面图、井道构件详图及材料表。

某钢结构电梯井结构图纸(共3张图)

某钢结构电梯井结构图纸(共3张图)

某钢结构电梯井结构图纸(共3张图)
图纸3张,包括:货梯钢架井道平面图、货梯假机房平面图、货梯井道剖面图、井道构件详图及材料表。
声明:资源收集自网络或用户分享,仅供学习参考,如侵犯您的权益,请联系我们处理。
不能下载?报告错误