
钢结构厂房结构设计图(独立基础,共11张)

钢结构厂房结构设计图(独立基础,共11张)

钢结构厂房结构设计图(独立基础,共11张)
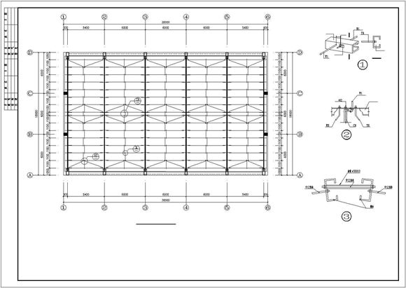
建筑功能:工业建筑厂房高度类别:单层厂房地上层数:1层图纸深度:施工图民用建筑设计使用年限:50年结构形式:钢结构钢结构:门式刚架基础形式:独立基础结构安全等级:二级结构最大跨度:

钢结构厂房结构设计图(独立基础,共11张)

钢结构厂房结构设计图(独立基础,共11张)

钢结构厂房结构设计图(独立基础,共11张)
建筑功能:工业建筑厂房高度类别:单层厂房地上层数:1层图纸深度:施工图民用建筑设计使用年限:50年结构形式:钢结构钢结构:门式刚架基础形式:独立基础结构安全等级:二级结构最大跨度:
声明:资源收集自网络或用户分享,仅供学习参考,如侵犯您的权益,请联系我们处理。
不能下载?报告错误