
某消防水池结构设计图(共3张)

某消防水池结构设计图(共3张)

某消防水池结构设计图(共3张)
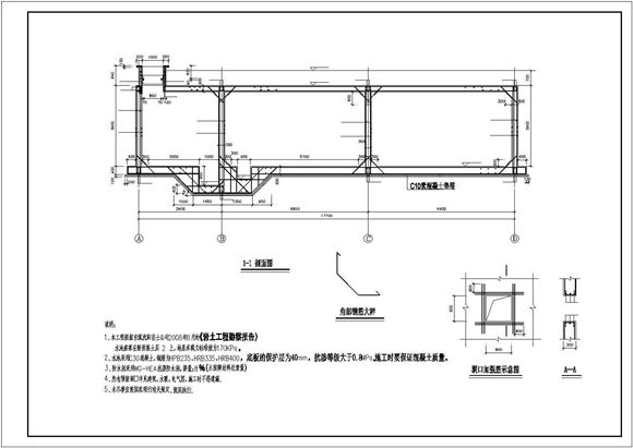
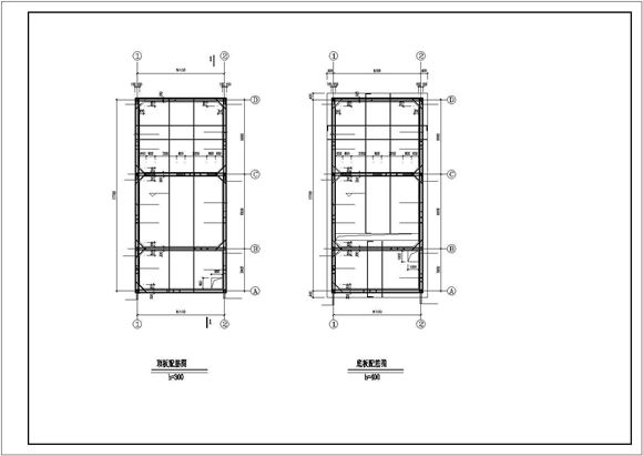
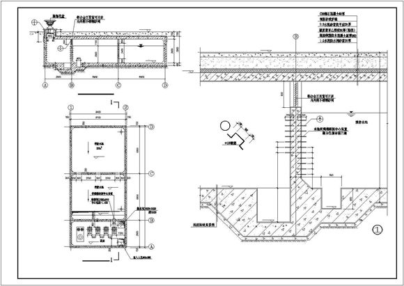
建筑功能:工业建筑图纸深度:施工图民用建筑设计使用年限:50年结构形式:钢筋混凝土结构钢筋混凝土结构:其他结构特种结构:水池图纸张数:3张设计时间:2011内容简介图纸包括:平面图(@https://www.guifan.net/)

某消防水池结构设计图(共3张)

某消防水池结构设计图(共3张)

某消防水池结构设计图(共3张)
建筑功能:工业建筑图纸深度:施工图民用建筑设计使用年限:50年结构形式:钢筋混凝土结构钢筋混凝土结构:其他结构特种结构:水池图纸张数:3张设计时间:2011内容简介图纸包括:平面图(@https://www.guifan.net/)
声明:资源收集自网络或用户分享,仅供学习参考,如侵犯您的权益,请联系我们处理。
不能下载?报告错误