
某门式刚架结构设计图(共22张图)

某门式刚架结构设计图(共22张图)

某门式刚架结构设计图(共22张图)
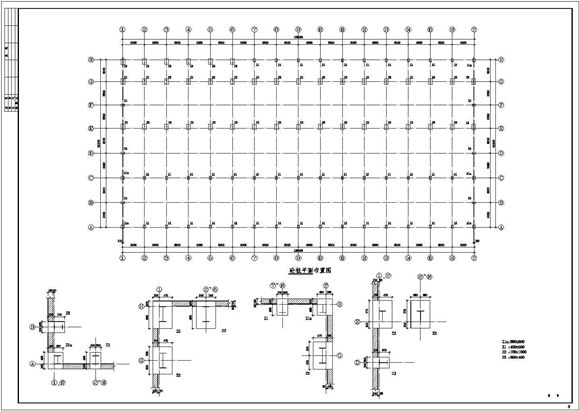
某门式刚架结构设计图本次设计为:某门式刚架结构设计图图纸包括:预埋定位图、柱网布置图、吊车梁平面布置图、水平支撑布置图、柱间支撑布置图、檩条布置图、墙梁布置图、剖面图、节点详图、夹层

某门式刚架结构设计图(共22张图)

某门式刚架结构设计图(共22张图)

某门式刚架结构设计图(共22张图)
某门式刚架结构设计图本次设计为:某门式刚架结构设计图图纸包括:预埋定位图、柱网布置图、吊车梁平面布置图、水平支撑布置图、柱间支撑布置图、檩条布置图、墙梁布置图、剖面图、节点详图、夹层
声明:资源收集自网络或用户分享,仅供学习参考,如侵犯您的权益,请联系我们处理。
不能下载?报告错误