当前位置:首页  资料内容详情

各种风机盘管的CAD图纸

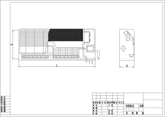
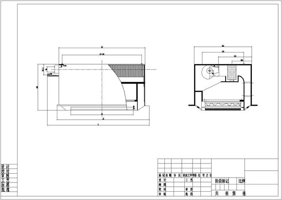
各种风机盘管的CAD图纸 各种风机盘管的CAD图纸 各种风机盘管的CAD图纸 本工程为各种风机盘管的图纸,包含风机盘管、FP-WA卧式暗装(带回风箱)、FP-WA卧式暗装等图供设计师参考。

各种风机盘管的CAD图纸

声明:本站为网络服务提供者及网络索引服务平台资源索引自网络/用户分享,如有版权问题,请联系站方删除。

不能下载?报告错误