
某水池结构设计施工图(共3张图)

某水池结构设计施工图(共3张图)

某水池结构设计施工图(共3张图)
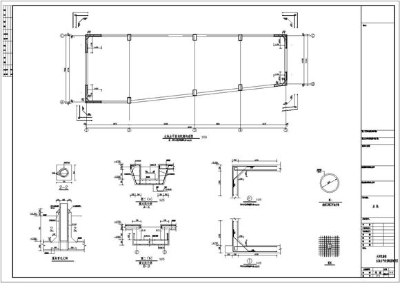
本次设计为:某水池结构施工图图纸包括:设计说明、水池池壁配筋构造图、水池水平转角配筋构造图、大样配筋图、水池顶板结构平面图及梁平面布置图、水池底板结构平面图共3张图纸。

某水池结构设计施工图(共3张图)

某水池结构设计施工图(共3张图)

某水池结构设计施工图(共3张图)
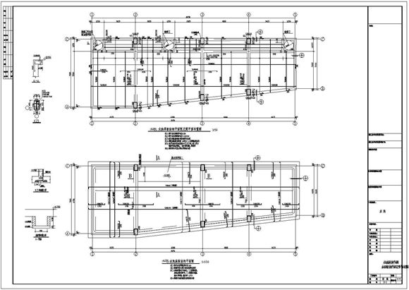
本次设计为:某水池结构施工图图纸包括:设计说明、水池池壁配筋构造图、水池水平转角配筋构造图、大样配筋图、水池顶板结构平面图及梁平面布置图、水池底板结构平面图共3张图纸。
声明:资源收集自网络或用户分享,仅供学习参考,如侵犯您的权益,请联系我们处理。
不能下载?报告错误