当前位置:首页  资料内容详情

上海某小区生活水泵房给排水图(含施工说明)

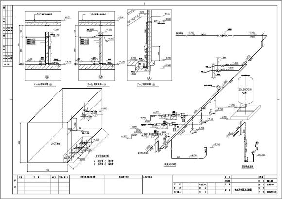
上海某小区生活水泵房给排水图(含施工说明) 上海某小区生活水泵房给排水图(含施工说明) 图纸内容包括:1.施工说明2.水泵房平面图3.水泵房剖面及系统图4.材料表

上海某小区生活水泵房给排水图(含施工说明)

声明:本站为网络服务提供者及网络索引服务平台资源索引自网络/用户分享,如有版权问题,请联系站方删除。

不能下载?报告错误