
某城市污水处理厂污泥脱水机房建筑结构图

某城市污水处理厂污泥脱水机房建筑结构图

某城市污水处理厂污泥脱水机房建筑结构图
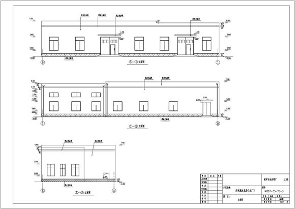
某城市污水处理厂污泥脱水机房建筑结构图本次设计为:某城市污水处理厂污泥脱水机房建筑结构图结构形式:本工程为一层现浇框架结构,楼板采用现浇钢筋混凝土梁板结构。设计使用年限为50年。基

某城市污水处理厂污泥脱水机房建筑结构图

某城市污水处理厂污泥脱水机房建筑结构图

某城市污水处理厂污泥脱水机房建筑结构图
某城市污水处理厂污泥脱水机房建筑结构图本次设计为:某城市污水处理厂污泥脱水机房建筑结构图结构形式:本工程为一层现浇框架结构,楼板采用现浇钢筋混凝土梁板结构。设计使用年限为50年。基
声明:资源收集自网络或用户分享,仅供学习参考,如侵犯您的权益,请联系我们处理。
不能下载?报告错误