
住宅地暖施工图全套,共7张

住宅地暖施工图全套,共7张

住宅地暖施工图全套,共7张
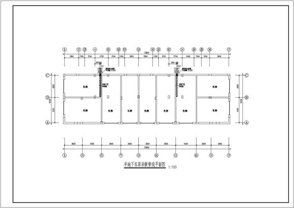
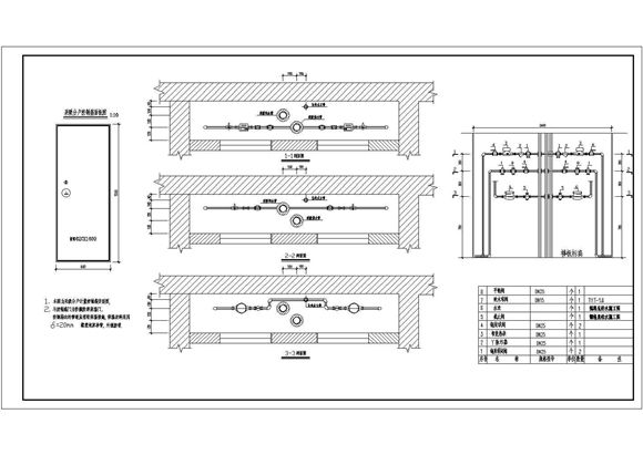
设计说明:有建筑功能:住宅高度类别:多层建筑图纸深度:施工图图纸张数:7张设计内容:采暖采暖系统:热水辐射内容简介半地下车库采暖管线平面图、一~五层采暖平面图、阁楼层采暖平面图、采暖系

住宅地暖施工图全套,共7张

住宅地暖施工图全套,共7张

住宅地暖施工图全套,共7张
设计说明:有建筑功能:住宅高度类别:多层建筑图纸深度:施工图图纸张数:7张设计内容:采暖采暖系统:热水辐射内容简介半地下车库采暖管线平面图、一~五层采暖平面图、阁楼层采暖平面图、采暖系
声明:资源收集自网络或用户分享,仅供学习参考,如侵犯您的权益,请联系我们处理。
不能下载?报告错误