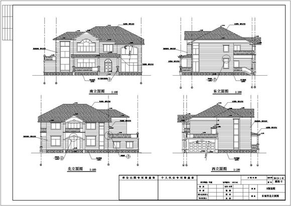
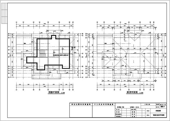
某400平米2层高档别墅设计图(含效果图) 某400平米2层高档别墅设计图(含效果图) 某400平米2层高档别墅设计图(含效果图) 建筑类型:独栋别墅高度类别:多层建筑图纸深度:方案(初设图)设计风格:欧陆风格设计流派:新古典图纸格式:JPG,天正7,CAD2000图纸张数:8张建筑面积:400㎡建筑高度:9.4
某400平米2层高档别墅设计图(含效果图)
某400平米2层高档别墅设计图(含效果图) 某400平米2层高档别墅设计图(含效果图) 某400平米2层高档别墅设计图(含效果图) 建筑类型:独栋别墅高度类别:多层建筑图纸深度:方案(初设图)设计风格:欧陆风格设计流派:新古典图纸格式:JPG,天正7,CAD2000图纸张数:8张建筑面积:400㎡建筑高度:9.4
某400平米2层高档别墅设计图(含效果图)