
单层6米高钢结构仓库结构图(单坡屋面)

单层6米高钢结构仓库结构图(单坡屋面)

单层6米高钢结构仓库结构图(单坡屋面)
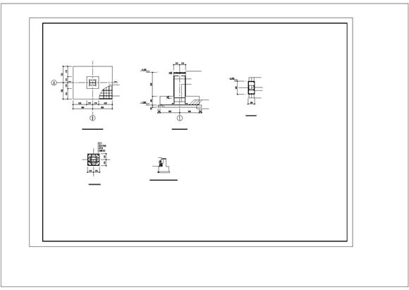
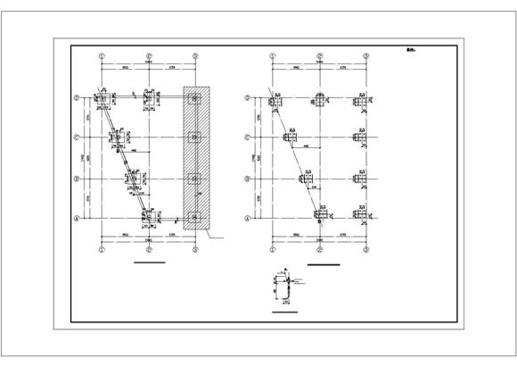
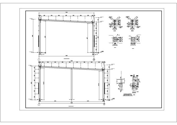
本资料为:单层6米高钢结构仓库结构图(单坡屋面),包括:结构设计说明、基础平面布置图、锚栓平面布置图、基础大样图等,可供设计师参考。

单层6米高钢结构仓库结构图(单坡屋面)

单层6米高钢结构仓库结构图(单坡屋面)

单层6米高钢结构仓库结构图(单坡屋面)
本资料为:单层6米高钢结构仓库结构图(单坡屋面),包括:结构设计说明、基础平面布置图、锚栓平面布置图、基础大样图等,可供设计师参考。
声明:资源收集自网络或用户分享,仅供学习参考,如侵犯您的权益,请联系我们处理。
不能下载?报告错误