
某横明竖隐铝合金半隐框幕墙节点图集,共24张

某横明竖隐铝合金半隐框幕墙节点图集,共24张

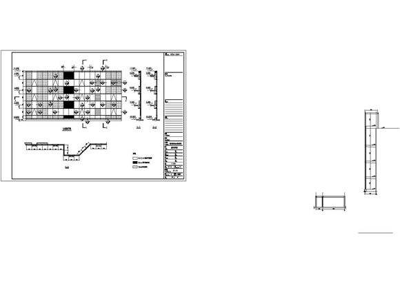
某横明竖隐铝合金半隐框幕墙节点图集,共24张
图纸包括:设计说明、开启扇横剖节点图、开启扇纵剖节点图、百页横剖节点图、百页纵剖节点图、转角横剖节点图、铝板接玻璃横剖节点图、封边横剖节点图、单层铝板横剖标准节点图、铝板封边横剖节点图、铝板接开启扇纵

某横明竖隐铝合金半隐框幕墙节点图集,共24张

某横明竖隐铝合金半隐框幕墙节点图集,共24张

某横明竖隐铝合金半隐框幕墙节点图集,共24张
图纸包括:设计说明、开启扇横剖节点图、开启扇纵剖节点图、百页横剖节点图、百页纵剖节点图、转角横剖节点图、铝板接玻璃横剖节点图、封边横剖节点图、单层铝板横剖标准节点图、铝板封边横剖节点图、铝板接开启扇纵
声明:资源收集自网络或用户分享,仅供学习参考,如侵犯您的权益,请联系我们处理。
不能下载?报告错误