
某柴油发电机房设计cad全套施工图(标注详细)

某柴油发电机房设计cad全套施工图(标注详细)
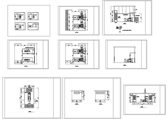
本图纸为某柴油发电机房设计cad全套施工图(标注详细);包括:機房平面圖、机房剖面图、基础平面图、机房立面图、配电柜示意图等;设计规范,可供参考学习。

某柴油发电机房设计cad全套施工图(标注详细)

某柴油发电机房设计cad全套施工图(标注详细)
本图纸为某柴油发电机房设计cad全套施工图(标注详细);包括:機房平面圖、机房剖面图、基础平面图、机房立面图、配电柜示意图等;设计规范,可供参考学习。
声明:资源收集自网络或用户分享,仅供学习参考,如侵犯您的权益,请联系我们处理。
不能下载?报告错误