
厕所常用的蹲便器设计CAD图纸(9张)

厕所常用的蹲便器设计CAD图纸(9张)

厕所常用的蹲便器设计CAD图纸(9张)
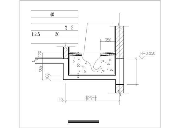
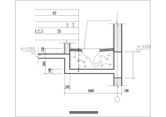
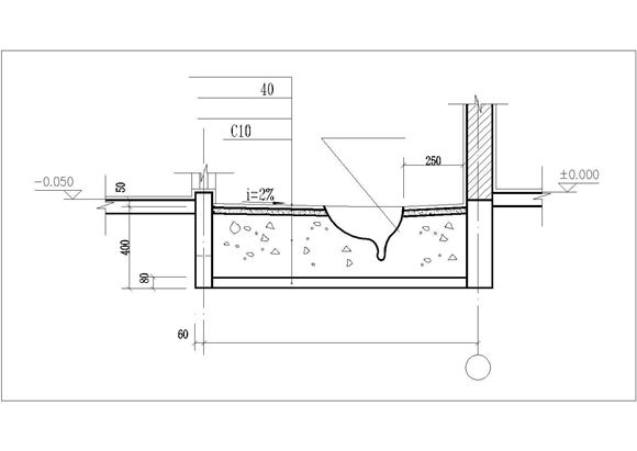
本资料为厕所常用的蹲便器设计CAD图纸,其中包含9种经典常用的蹲便器设计图,可供设计师参考!

厕所常用的蹲便器设计CAD图纸(9张)

厕所常用的蹲便器设计CAD图纸(9张)

厕所常用的蹲便器设计CAD图纸(9张)
本资料为厕所常用的蹲便器设计CAD图纸,其中包含9种经典常用的蹲便器设计图,可供设计师参考!
声明:资源收集自网络或用户分享,仅供学习参考,如侵犯您的权益,请联系我们处理。
不能下载?报告错误