
6层12201.31平米电子厂车间cad图纸设计

6层12201.31平米电子厂车间cad图纸设计

6层12201.31平米电子厂车间cad图纸设计
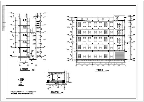
本图纸为:6层12201.31平米电子厂车间,图纸包括:雨蓬节点详图、电梯基坑详图、4-4剖面图等,图纸内容完整,设计规范,制图严谨,欢迎设计师下载使用。

6层12201.31平米电子厂车间cad图纸设计

6层12201.31平米电子厂车间cad图纸设计

6层12201.31平米电子厂车间cad图纸设计
本图纸为:6层12201.31平米电子厂车间,图纸包括:雨蓬节点详图、电梯基坑详图、4-4剖面图等,图纸内容完整,设计规范,制图严谨,欢迎设计师下载使用。
声明:资源收集自网络或用户分享,仅供学习参考,如侵犯您的权益,请联系我们处理。
不能下载?报告错误