
500平,200平多层农村小别墅设计图资料合集(三套方案资料设计)

500平,200平多层农村小别墅设计图资料合集(三套方案资料设计)

500平,200平多层农村小别墅设计图资料合集(三套方案资料设计)
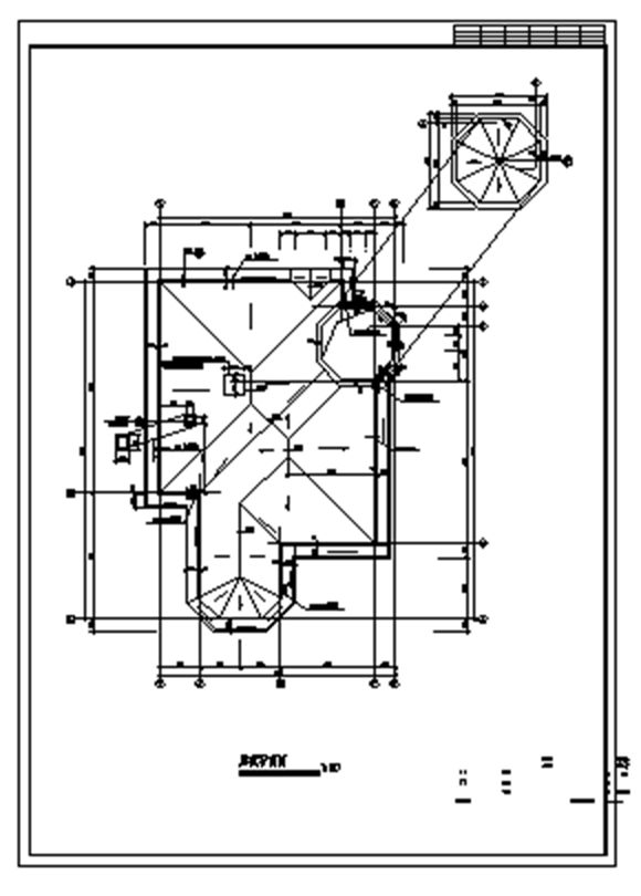
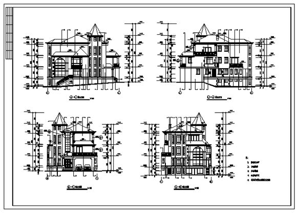
本资料为500平,200平三层带半地下室农村小别墅设计图资料合集,资料内容包括半地下室平面图,一层平面图,二层平面图,三层平面图,屋顶平面图,轴立面图可供参考,值得设计师下载

500平,200平多层农村小别墅设计图资料合集(三套方案资料设计)

500平,200平多层农村小别墅设计图资料合集(三套方案资料设计)

500平,200平多层农村小别墅设计图资料合集(三套方案资料设计)
本资料为500平,200平三层带半地下室农村小别墅设计图资料合集,资料内容包括半地下室平面图,一层平面图,二层平面图,三层平面图,屋顶平面图,轴立面图可供参考,值得设计师下载
声明:资源收集自网络或用户分享,仅供学习参考,如侵犯您的权益,请联系我们处理。
不能下载?报告错误