
拉森钢板桩、转角异型支护CAD大样图(含SP-IV型拉森钢板桩支护大样图)

拉森钢板桩、转角异型支护CAD大样图(含SP-IV型拉森钢板桩支护大样图)
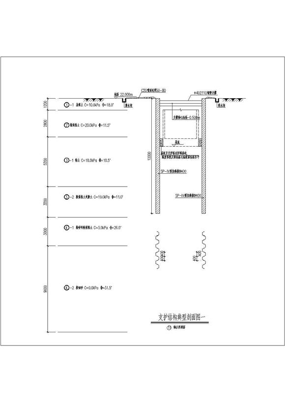
本图纸为:拉森钢板桩、转角异型支护CAD大样图,内容包括:SP-IV型拉森钢板桩支护大样图,支护结构典型剖面图,设计说明等,设计精准全面,内容详实,可供参考

拉森钢板桩、转角异型支护CAD大样图(含SP-IV型拉森钢板桩支护大样图)

拉森钢板桩、转角异型支护CAD大样图(含SP-IV型拉森钢板桩支护大样图)
本图纸为:拉森钢板桩、转角异型支护CAD大样图,内容包括:SP-IV型拉森钢板桩支护大样图,支护结构典型剖面图,设计说明等,设计精准全面,内容详实,可供参考
声明:资源收集自网络或用户分享,仅供学习参考,如侵犯您的权益,请联系我们处理。
不能下载?报告错误