规范网
更新
当前位置:
规范网
资料
内容详情
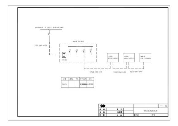
4MW屋顶分布式光伏发电项目接入系统 图纸
该资料大小估算1.26MB,4MW屋顶分布式光伏发电项目接入系统 图纸共15页,pdf格式
加入收藏
下载文件
声明:资源收集自网络或用户分享,仅供学习参考,如侵犯您的权益,请联系我们处理。
不能下载?报告错误
下页:
《隆基建筑光伏一体化产品与解决方案》
相关推荐
屋顶分布式光伏电站设计及施工方案培训资料
屋顶分布式光伏建设指导规范
国家电网 2.25MW屋顶分布式光伏发电项目接入系统方案
屋顶分布式光伏投资收益测算表
160MW屋顶分布式光伏项目开发试点方案
4MW屋顶分布式光伏发电项目接入系统 图纸
下载文件
免费下载
标签
建筑材料规范
电缆标准
活动总结
15j401
司法规范
内蒙古自治区标准
球墨铸铁管标准
山东省标准
阻燃标准
食用油标准
焊接标准
技术总结
食品安全标准
地质矿产规范
化工规范
公司工作计划
装修
有色金属规范
出差申请
胶合板标准
教学评语
实习报告
布线标准
铆钉标准
安全生产
最新更新
安全带标准
牛奶标准