该资料大小估算0.2MB,双绕组35kV欧变平面布置图共1页,dwg格式
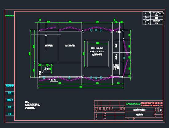
35kV双绕组欧式变电站(欧变)平面布置图通常包含以下主要区域和设备的布置:1.高压室(35kV侧)-35kV进线间隔-35kV出线间隔(如有)-35kV开关柜(如SF6充气柜)-35kV母线2.变压器室-35/0.4kV双绕组变压器-变压器基础-通风散热设施3.低压室(0.4kV侧)-低压配电柜-无功补偿柜-低压母线4.辅助区域-二次设备室(保护测控屏)-电缆沟布置-消防设施-接地网典型布置特点:-一般采用单层布置-高压室和低压室分列变压器两侧-变压器通常居中布置-各功能区域有明显分隔-考虑足够的操作维护通道注意事项:1.安全净距符合规范要求2.电缆沟走向合理3.通风散热设计完善4.防火分区明确5.接地系统完整具体布置会根据变电站容量、进出线方式、当地规范等因素有所变化。
