规范网
更新
当前位置:
规范网
资料
内容详情
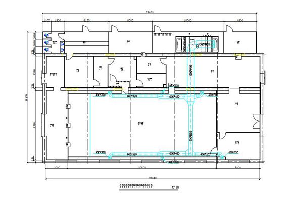
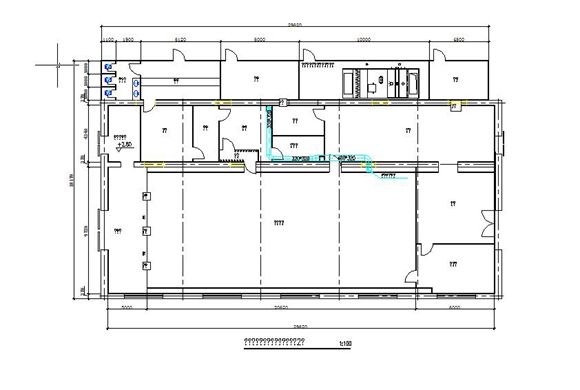
某地小型医疗器械暖通设计图
某地小型医疗器械暖通设计图
某地小型医疗器械暖通设计图
某地小型医疗器械暖通设计图
医疗器械车间全套图纸,其包含的内容比较齐全,内容详实,可供设计师下载参考。
加入收藏
下载文件
声明:资源收集自网络或用户分享,仅供学习参考,如侵犯您的权益,请联系我们处理。
不能下载?报告错误
下页:
恒温恒湿中央空调图
相关推荐
水电站公用辅助设备检修规程 第4 部分:供暖通风与空气调节系统 (DL/T 2571.4-2024)
电气、给排水、暖通、消防工程重点施工工艺-图文PPT讲义
07K133图集 薄钢板法兰风管制作与安装 暖通图集
05SK603图集民用建筑工程设计互提资料深度及图样-暖通空调专业
暖通空调工程复合橡塑绝热材料应用技术规程 (T/SZCES 001-2024)
某地小型医疗器械暖通设计图
下载文件
免费下载
标签
江苏省标准
紧固件标准
电缆标准
过滤器标准
球墨铸铁管标准
银行总结
听课报告
应急管理规范
给排水
个人自我介绍
粮食规范
口罩标准
能源规范
新闻出版规范
电动车标准
电动自行车标准
浙江省标准
云南省标准
食用油标准
项目总结
广东省标准
教学计划
16s518
家长会发言稿
工业标准
档案规范
法兰标准
农业标准