规范网
更新
当前位置:
规范网
资料
内容详情
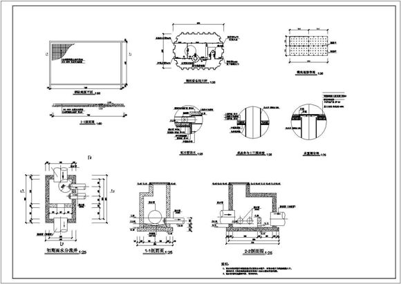
海绵工程雨水收集利用(雨水综合利用系统设计说明)
海绵工程雨水收集利用、(含雨水综合利用系统设计说明)
海绵工程雨水收集利用、(含雨水综合利用系统设计说明)
海绵工程(含雨水综合利用系统设计说明)
加入收藏
下载文件
声明:资源收集自网络或用户分享,仅供学习参考,如侵犯您的权益,请联系我们处理。
不能下载?报告错误
下页:
某单层北京经典四合院建筑设计图
相关推荐
生态透水砖雨水收集工程技术标准 (DB62/T 3218-2022)
2016CPXY-S52图集 TP建筑雨水收集回用成套设备
2013CPXY-J285图集 仁创雨水收集与利用系统
雨水收集利用系统 (T/QGCML 3018-2024)
智能化碳纤雨水收集模块系统应用技术规程 (DB21/T 3704-2023)
海绵工程雨水收集利用(雨水综合利用系统设计说明)
下载文件
免费下载
标签
转正申请
土地管理规范
银行总结
05j909
辽宁省标准
最新更新
阀门标准
螺母标准
线材标准
船舶规范
人事总结
新闻出版规范
项目申请
中心孔标准
钢管标准
工业标准
个人自我介绍
核工业规范
陕西省标准
海关规范
电气设计cad
校车标准
平键标准
合同模板
听课报告
医院工作计划
上海市标准
不锈钢管标准