当前位置:首页  资料内容详情

常见的地垄墙的作法(可直接出图)

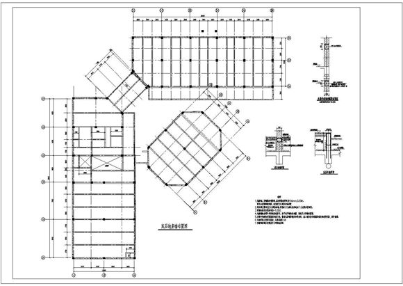
常见的地垄墙的作法(可以直接出图) 常见的地垄墙的作法,值得参考,可以直接用于设计院出图。一般,地下室顶板在地面以下1.5米或更多,而地面标高为0.000,这时就需要设备地垄墙,节省造价。

常见的地垄墙的作法(可直接出图)

声明:本站为网络服务提供者及网络索引服务平台资源索引自网络/用户分享,如有版权问题,请联系站方删除。

不能下载?报告错误