
比较齐全的大型办公楼装修图(全集)

比较齐全的大型办公楼装修图(全集)

比较齐全的大型办公楼装修图(全集)
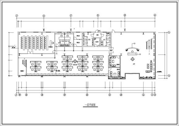
本资料为:比较齐全的大型办公楼装修图(全集)内容包括:一层平面图,二层平面图,办公楼西立面等内容,可供参考。

比较齐全的大型办公楼装修图(全集)

比较齐全的大型办公楼装修图(全集)

比较齐全的大型办公楼装修图(全集)
本资料为:比较齐全的大型办公楼装修图(全集)内容包括:一层平面图,二层平面图,办公楼西立面等内容,可供参考。
声明:资源收集自网络或用户分享,仅供学习参考,如侵犯您的权益,请联系我们处理。
不能下载?报告错误