当前位置:首页  资料内容详情

某市大型单家别墅设计图纸

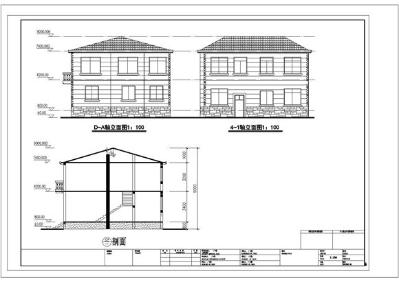
某市大型单家别墅设计图纸 某市大型单家别墅设计图纸 某市大型单家别墅设计图纸 本资料为单家独院式别墅全套施工图(建筑结构水电图),其中内容包括:一层平面图,剖面图,效图图,立面图,建筑设计说明等。

某市大型单家别墅设计图纸

声明:本站为网络服务提供者及网络索引服务平台资源索引自网络/用户分享,如有版权问题,请联系站方删除。

不能下载?报告错误