
1.1万平米7层框架结构商业办公楼全套建筑设计CAD图纸(1-3层商用)

1.1万平米7层框架结构商业办公楼全套建筑设计CAD图纸(1-3层商用)
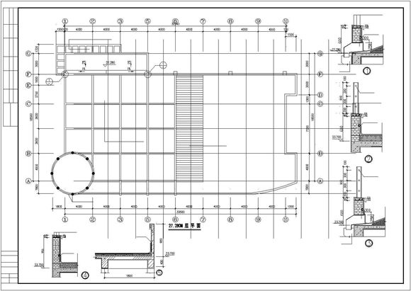
本资料为1.1万平米7层框架结构商业办公楼全套建筑设计CAD图纸,其中包含:各层平面图,屋顶平面图,立剖面图等,可供设计师参考!

1.1万平米7层框架结构商业办公楼全套建筑设计CAD图纸(1-3层商用)

1.1万平米7层框架结构商业办公楼全套建筑设计CAD图纸(1-3层商用)
本资料为1.1万平米7层框架结构商业办公楼全套建筑设计CAD图纸,其中包含:各层平面图,屋顶平面图,立剖面图等,可供设计师参考!
声明:资源收集自网络或用户分享,仅供学习参考,如侵犯您的权益,请联系我们处理。
不能下载?报告错误