
550平米单层砖混休闲民宿酒店平立面设计CAD图纸(3套方案)

550平米单层砖混休闲民宿酒店平立面设计CAD图纸(3套方案)

550平米单层砖混休闲民宿酒店平立面设计CAD图纸(3套方案)
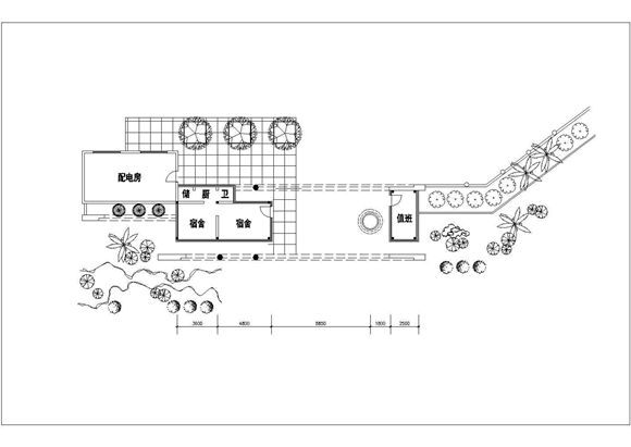
本资料为550平米单层砖混休闲民宿酒店平立面设计CAD图纸,其中包含:平面图,屋顶平面图,立面图等,可供设计师参考!

550平米单层砖混休闲民宿酒店平立面设计CAD图纸(3套方案)

550平米单层砖混休闲民宿酒店平立面设计CAD图纸(3套方案)

550平米单层砖混休闲民宿酒店平立面设计CAD图纸(3套方案)
本资料为550平米单层砖混休闲民宿酒店平立面设计CAD图纸,其中包含:平面图,屋顶平面图,立面图等,可供设计师参考!
声明:资源收集自网络或用户分享,仅供学习参考,如侵犯您的权益,请联系我们处理。
不能下载?报告错误