
经典布局-一梯两户住宅户型图(共16张)

经典布局-一梯两户住宅户型图(共16张)

经典布局-一梯两户住宅户型图(共16张)
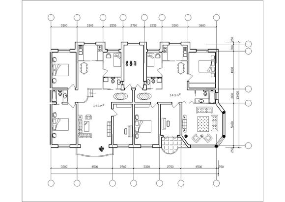
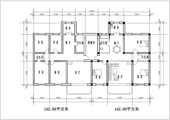
本图为经典布局-一梯两户住宅户型图(共16张),包含内容:16套标注详细的经典布局-一梯两户住宅户型图等,其内容十分详实,可供设计师们下载参考。

经典布局-一梯两户住宅户型图(共16张)

经典布局-一梯两户住宅户型图(共16张)

经典布局-一梯两户住宅户型图(共16张)
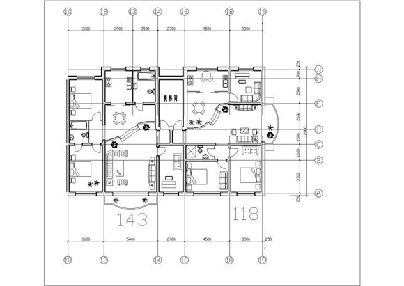
本图为经典布局-一梯两户住宅户型图(共16张),包含内容:16套标注详细的经典布局-一梯两户住宅户型图等,其内容十分详实,可供设计师们下载参考。
声明:资源收集自网络或用户分享,仅供学习参考,如侵犯您的权益,请联系我们处理。
不能下载?报告错误