当前位置:首页  资料内容详情

某公司设计活性炭吸附过滤罐设备图纸

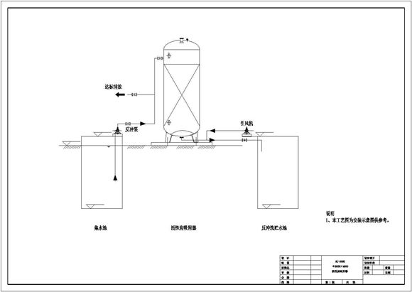
某公司设计活性炭吸附过滤罐设备图纸 某公司设计活性炭吸附过滤罐设备图纸 某公司设计活性炭吸附过滤罐设备图纸 本图纸包含简单的工艺流程图,设备尺寸图,设备材料大样图,材料清单表。图纸可供参考~

某公司设计活性炭吸附过滤罐设备图纸

声明:本站为网络服务提供者及网络索引服务平台资源索引自网络/用户分享,如有版权问题,请联系站方删除。

不能下载?报告错误