当前位置:首页  资料内容详情

一梯两户双阳台12种户型设计图纸

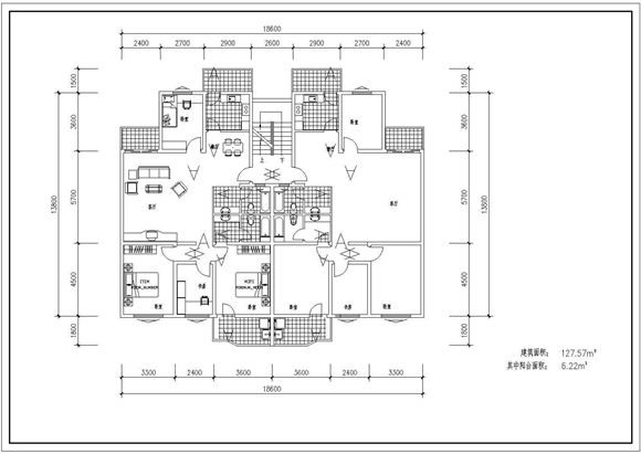
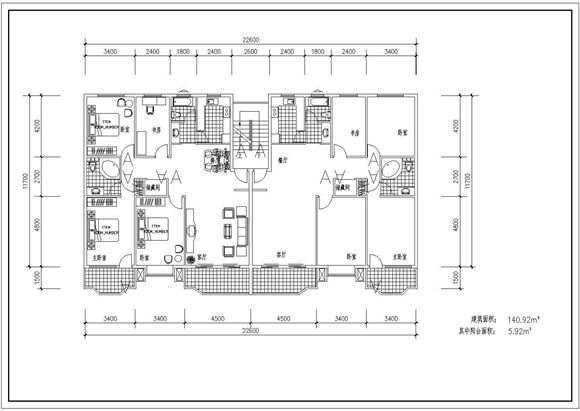
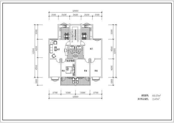
一梯两户双阳台12种户型设计图纸 一梯两户双阳台12种户型设计图纸 一梯两户双阳台12种户型设计图纸 一梯两户双阳台12种户型设计图纸,包括12种户型设计图,并含有户型面积及阳台面积。

一梯两户双阳台12种户型设计图纸

声明:本站为网络服务提供者及网络索引服务平台资源索引自网络/用户分享,如有版权问题,请联系站方删除。

不能下载?报告错误