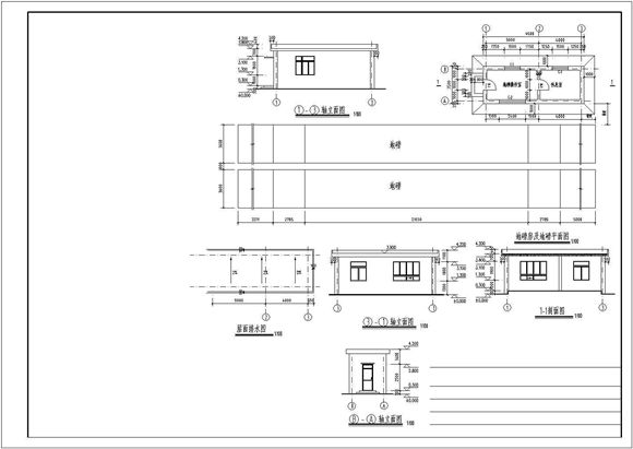
某地区地磅房结构和建筑设计施工图纸 某地区地磅房结构和建筑设计施工图纸 某地区地磅房结构和建筑设计施工图纸 该工程为某地区地磅房结构和建筑设计,图纸内容包含平面图,立面图,剖面图,结构平面配筋图,基础平面图,预埋件详图等。
某地区地磅房结构和建筑设计施工图纸
某地区地磅房结构和建筑设计施工图纸 某地区地磅房结构和建筑设计施工图纸 某地区地磅房结构和建筑设计施工图纸 该工程为某地区地磅房结构和建筑设计,图纸内容包含平面图,立面图,剖面图,结构平面配筋图,基础平面图,预埋件详图等。
某地区地磅房结构和建筑设计施工图纸