
某项目钢结构弧形楼梯全套结构施工图

某项目钢结构弧形楼梯全套结构施工图

某项目钢结构弧形楼梯全套结构施工图
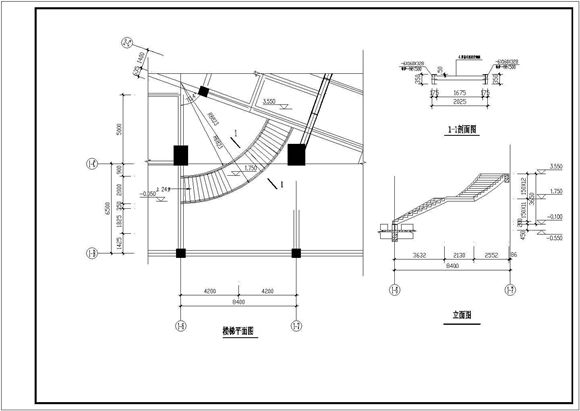
该图纸为某项目钢结构弧形楼梯全套结构施工图,图纸包括:目录,楼梯平面图,立面图,剖面图,楼梯结构布置图,外梯段展开图,各节点详图等。

某项目钢结构弧形楼梯全套结构施工图

某项目钢结构弧形楼梯全套结构施工图

某项目钢结构弧形楼梯全套结构施工图
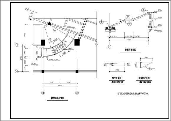
该图纸为某项目钢结构弧形楼梯全套结构施工图,图纸包括:目录,楼梯平面图,立面图,剖面图,楼梯结构布置图,外梯段展开图,各节点详图等。
声明:资源收集自网络或用户分享,仅供学习参考,如侵犯您的权益,请联系我们处理。
不能下载?报告错误