
中石化加油站罩棚网架结构全套施工图

中石化加油站罩棚网架结构全套施工图

中石化加油站罩棚网架结构全套施工图
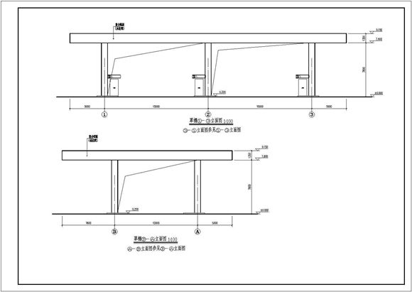
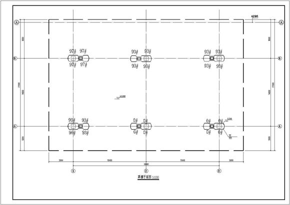
图纸内有网架结构平面图、网架上弦平面图、网架下弦平面图、网架腹杆平面图、屋面檩条平面图、屋面彩板布置图等等。

中石化加油站罩棚网架结构全套施工图

中石化加油站罩棚网架结构全套施工图

中石化加油站罩棚网架结构全套施工图
图纸内有网架结构平面图、网架上弦平面图、网架下弦平面图、网架腹杆平面图、屋面檩条平面图、屋面彩板布置图等等。
声明:资源收集自网络或用户分享,仅供学习参考,如侵犯您的权益,请联系我们处理。
不能下载?报告错误