
某小区住宅单元门入口门头全套施工图

某小区住宅单元门入口门头全套施工图

某小区住宅单元门入口门头全套施工图
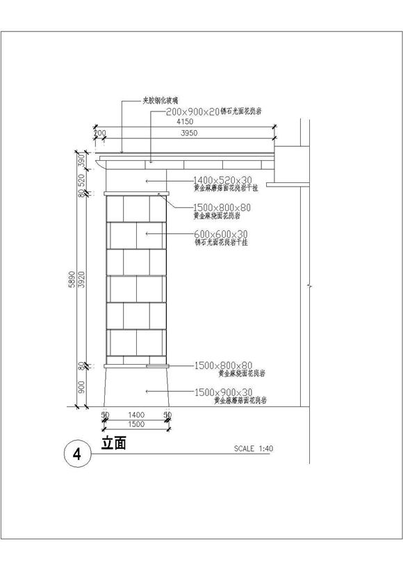
本图纸为:某小区住宅单元门入口门头全套施工图,有无障碍坡道、台阶以及顶部木架玻璃,图纸含平面图、正立面、侧立面、剖面图、顶面图、无障碍坡道做法、台阶做法及大样图。

某小区住宅单元门入口门头全套施工图

某小区住宅单元门入口门头全套施工图

某小区住宅单元门入口门头全套施工图
本图纸为:某小区住宅单元门入口门头全套施工图,有无障碍坡道、台阶以及顶部木架玻璃,图纸含平面图、正立面、侧立面、剖面图、顶面图、无障碍坡道做法、台阶做法及大样图。
声明:资源收集自网络或用户分享,仅供学习参考,如侵犯您的权益,请联系我们处理。
不能下载?报告错误