规范网
更新
当前位置:
规范网
资料
内容详情
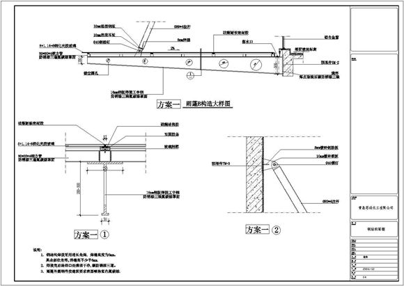
玻璃雨棚施工节点图(驳接爪)
玻璃雨棚施工节点图(驳接爪)
玻璃雨棚施工节点图(驳接爪)
玻璃雨棚施工节点图(驳接爪)
玻璃雨棚施工节点图(驳接爪),含施工节点断面图。。。。。。。。。
加入收藏
下载文件
声明:资源收集自网络或用户分享,仅供学习参考,如侵犯您的权益,请联系我们处理。
不能下载?报告错误
下页:
某地古建筑牌坊大门结构施工图
相关推荐
项目经理们直呼哇塞成本方圆图四大工具
想要真石漆不发花?请认真看完这篇外墙真石漆施工技术指引
细节见真章碧桂园标杆项目装修全过程管理及工艺亮点照片
武汉钢框架混凝土核心筒施工汇报
屋顶构造做法及细部构造培训讲义
玻璃雨棚施工节点图(驳接爪)
下载文件
免费下载
标签
气象规范
烟草规范
文化规范
机械制图标准
煤炭规范
物资管理规范
广东省标准
体育规范
粮食规范
数据标准
湖北省标准
国家电网
安全带标准
方案
国密密码规范
检验标准
有色金属规范
吉林省标准
电力规范
国内贸易规范
林业规范
离职申请
平垫圈标准
管件标准
消防救援规范
江西省标准
能源资料
建筑工程规范