
家用各类鞋柜详细cad图纸(全套)

家用各类鞋柜详细cad图纸(全套)

家用各类鞋柜详细cad图纸(全套)
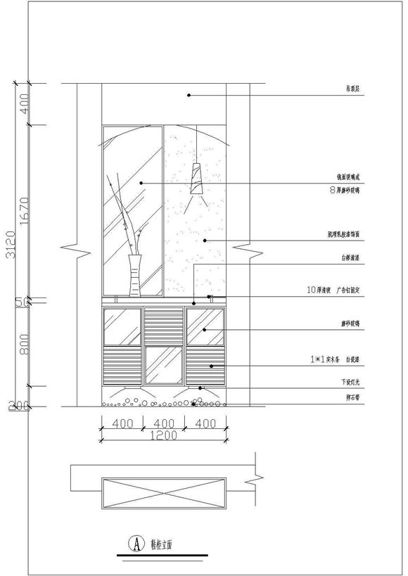
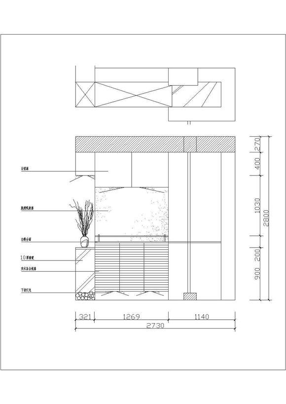
家用各类鞋柜详细cad图纸(全套),包括鞋柜立面墙样式、鞋柜立面图、更衣间衣柜内部分隔图等可供参考。

家用各类鞋柜详细cad图纸(全套)

家用各类鞋柜详细cad图纸(全套)

家用各类鞋柜详细cad图纸(全套)
家用各类鞋柜详细cad图纸(全套),包括鞋柜立面墙样式、鞋柜立面图、更衣间衣柜内部分隔图等可供参考。
声明:资源收集自网络或用户分享,仅供学习参考,如侵犯您的权益,请联系我们处理。
不能下载?报告错误