
某三室两厅家装设计施工图(共6张)

某三室两厅家装设计施工图(共6张)

某三室两厅家装设计施工图(共6张)
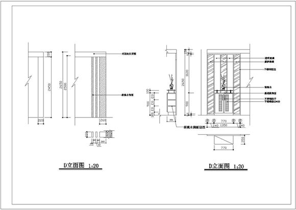
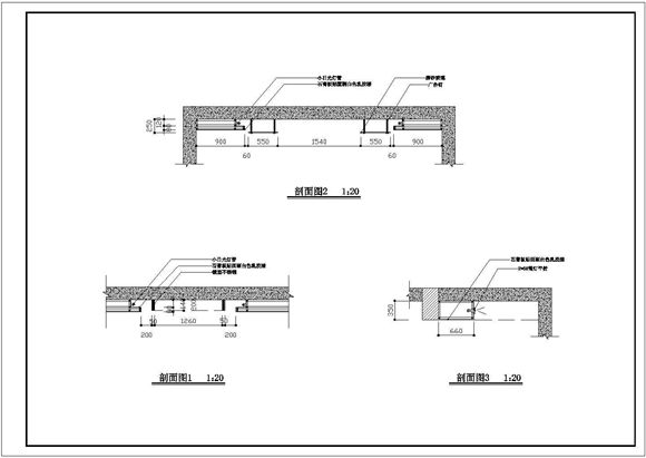
本图纸为:某三室两厅家装设计施工图,内容包括立面图,剖面图,天花板平面图等共6张,内容详细,可供参考。

某三室两厅家装设计施工图(共6张)

某三室两厅家装设计施工图(共6张)

某三室两厅家装设计施工图(共6张)
本图纸为:某三室两厅家装设计施工图,内容包括立面图,剖面图,天花板平面图等共6张,内容详细,可供参考。
声明:资源收集自网络或用户分享,仅供学习参考,如侵犯您的权益,请联系我们处理。
不能下载?报告错误