规范网
更新
当前位置:
规范网
资料
内容详情
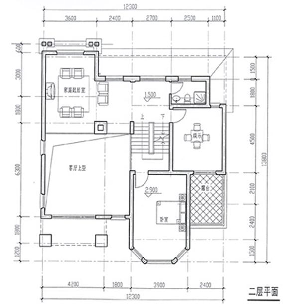
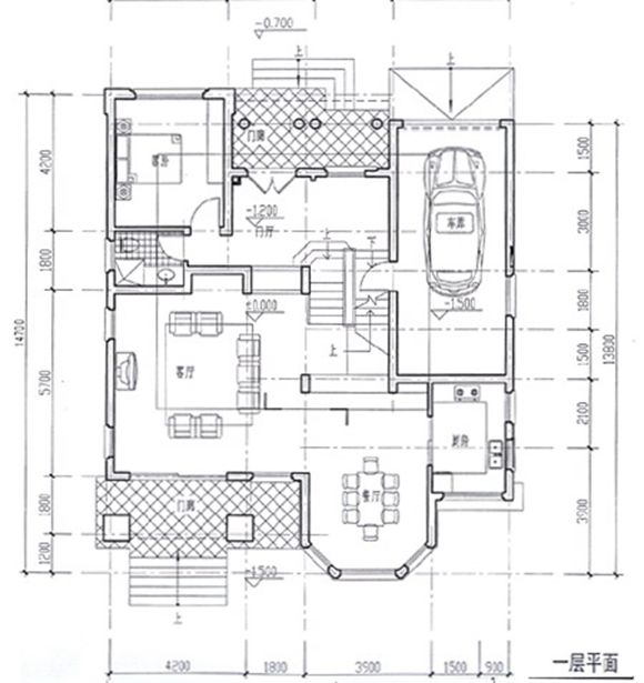
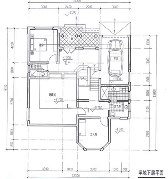
10套独栋别墅户型平面图(含效果图)
10套独栋别墅户型平面图(含效果图)
10套独栋别墅户型平面图(含效果图)
10套独栋别墅户型平面图(含效果图)
本套图纸包括10套独栋别墅户型平面图,且附带效果图,大户型,一户一梯。
加入收藏
下载文件
声明:资源收集自网络或用户分享,仅供学习参考,如侵犯您的权益,请联系我们处理。
不能下载?报告错误
下页:
客厅电视背景墙立面图剖面图详图
相关推荐
某地独栋别墅建筑cad施工图(共17张)
三层独栋别墅建筑设计cad施工图(含效果图)
多种类型新中式三层独栋别墅建筑cad图大全
10套独栋别墅户型平面图(含效果图)
某3层独栋别墅设计图纸(共8张)
10套独栋别墅户型平面图(含效果图)
下载文件
免费下载
标签
山西省标准
出入境检验检疫规范
教师工作计划
气象规范
旅游规范
10j301
园林
食品安全标准
体育规范
装修
建筑
纪检总结
能源规范
国密密码规范
安徽省标准
安全带标准
07sd101-8
航天规范
国家物资储备规范
石油化工规范
插头标准
农业规范
edi标准
手册
劳动和劳动安全规范
钢管标准
cad制图标准
信息总结