
三层独栋别墅建筑设计cad施工图(含效果图)

三层独栋别墅建筑设计cad施工图(含效果图)

三层独栋别墅建筑设计cad施工图(含效果图)
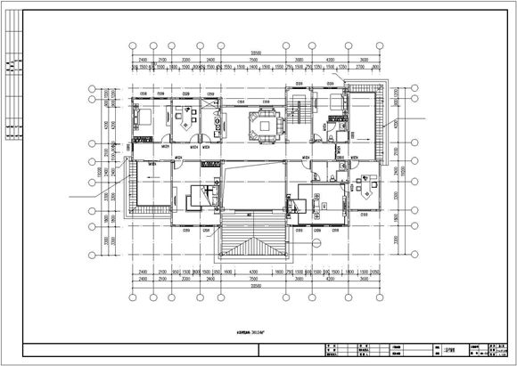
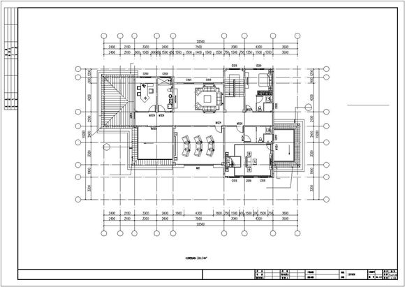
结构说明:外墙为200厚烧结多孔砖墙,局部为250厚烧结多孔砖墙,内墙为200后加砌混凝土砌块,局部为150后,100后加气混凝土砌块。图纸包含:设计说明,效果图,各层平面图,立面图,剖面图等。

三层独栋别墅建筑设计cad施工图(含效果图)

三层独栋别墅建筑设计cad施工图(含效果图)

三层独栋别墅建筑设计cad施工图(含效果图)
结构说明:外墙为200厚烧结多孔砖墙,局部为250厚烧结多孔砖墙,内墙为200后加砌混凝土砌块,局部为150后,100后加气混凝土砌块。图纸包含:设计说明,效果图,各层平面图,立面图,剖面图等。
声明:资源收集自网络或用户分享,仅供学习参考,如侵犯您的权益,请联系我们处理。
不能下载?报告错误