
某英式别墅石材建筑设计图(共12张)

某英式别墅石材建筑设计图(共12张)

某英式别墅石材建筑设计图(共12张)
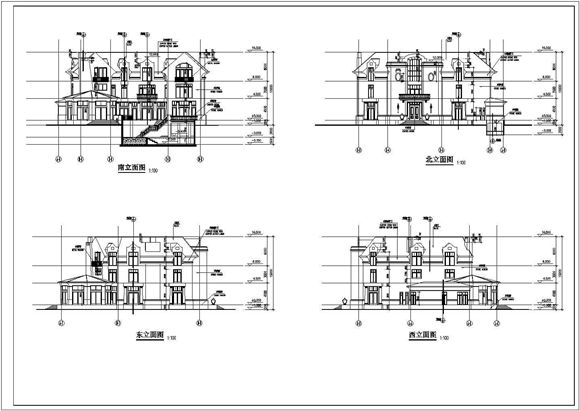
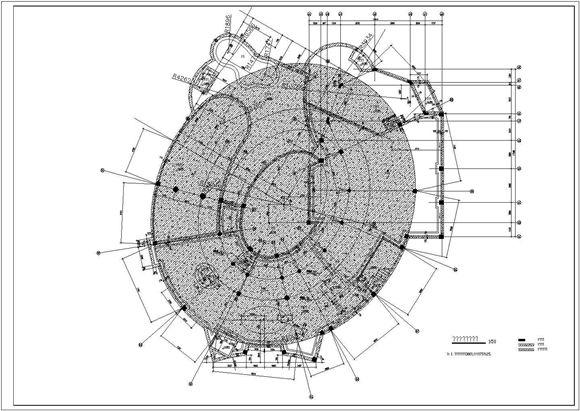
本图纸为:某英式别墅石材建筑设计图(共12张),其中包含:平面图、立面图、剖面图等,可供参考。

某英式别墅石材建筑设计图(共12张)

某英式别墅石材建筑设计图(共12张)

某英式别墅石材建筑设计图(共12张)
本图纸为:某英式别墅石材建筑设计图(共12张),其中包含:平面图、立面图、剖面图等,可供参考。
声明:资源收集自网络或用户分享,仅供学习参考,如侵犯您的权益,请联系我们处理。
不能下载?报告错误